Industriehalle im Chiemgau
Kaufpreis: 1.600.000,00 €*
zzgl. Betriebskosten und MwSt.
- Lage in der östlichen Chiemseeregion, Nähe Traunstein
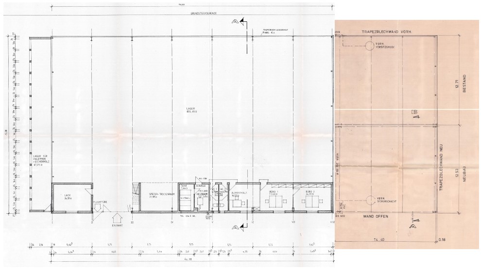
- großzügige Industriehalle für Produktion, Fertigung und Logistik
- stützenfreie Hallenfläche, Büro und Sozialräume vorhanden
- Stahlkonstruktion mit wärmegedämmter Fassade und Dach, beheizbar
- EnEV: Der Energieausweis ist in Vorbereitung
- Vermietet bis 2027/2028
Mehr Informationen
Die ca. 1.336 m² große Industriehalle, bestens geeignet für Produktion, Fertigung oder Logistik, befindet sich in der östlichen Chiemseeregion, nur wenige Kilometer von der Autobahn A8 und der Stadt Traunstein entfernt. Die Immobilie ist gepflegt und befindet sich in einem sehr guten Zustand.













