Attraktives Ladenlokal in hoch frequentierter Lage
Miete ab: 16,50 € / m²*
zzgl. Betriebskosten & MwSt.
- zentrale Innenstadtlage, unweit des Busbahnhofs und der Fußgängerzone
- großes Schaufenster auch über Eck, barrierefreier Zutritt
- sehr gut für alle Einzelhandelsnutzungen geeignet
- sehr guter Zustand, Vinylboden in Holzoptik, Decke mit LED-Beleuchtung
- EnEV: B, FW, B, Bj. 1965/2005, 67 kWh/m²a
- Verfügbar ab Januar 2026
Mehr Informationen
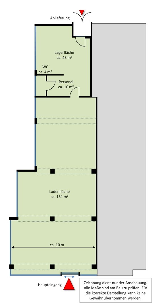
Das attraktive Ladenlokal befindet sich in guter und sehr frequentierter Innenstadtlage direkt am zentralen Busbahnhof. Das Umfeld ist von einem reichhaltigen Angebot an Einzelhandelsunternehmen und Gastronomie geprägt. Die Verkaufsfläche ist ca. 151 m² groß. Hinzu kommt ein Lager, der Personalraum und ein WC. Die Gesamtmietfläche beträgt somit 208 m².












