Hochwertige Bürofläche in Zentrumlage
Miete ab: 13,90 € / m²*
zzgl. Betriebskosten und MwSt.
- sehr gut erreichbare, zentrumsnahe Lage, Nähe Bahnhof
- sehr gepflegtes Gebäude mit hohem Wiedererkennungswert
- großzügige Büroflächen, lichtdurchflutet, sehr gut ausgestattet, klimatisiert
- Genehmigung für Schulungsunternehmen vorhanden, für allgemeine Büronutzungen bestens geeignet
- EnEV: Bedarf, FW, Bj1993, Energieausweis-Kennwert 46 kWh/m²a
- sofort verfügbar
Mehr Informationen
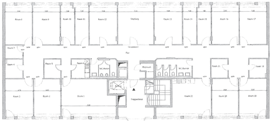
Sie suchen eine großzügige Bürofläche in zentrumsnaher Lage mit sehr guter Ausstattung und Erreichbarkeit? Auf ca. 481 m² Gesamtfläche können Sie Ihre unternehmerischen Pläne in die Tat umsetzen. Die Mietfläche steht Ihnen kurzfristig zur Verfügung.










